For Sale
€400,000 +VAT
This property is located in the village of Souni.
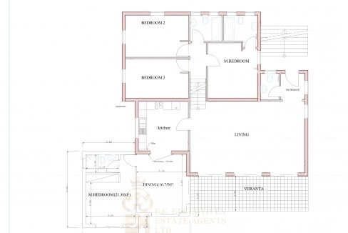
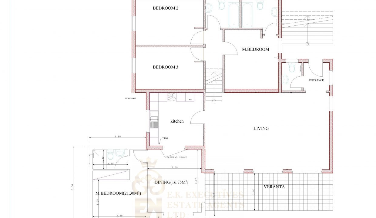
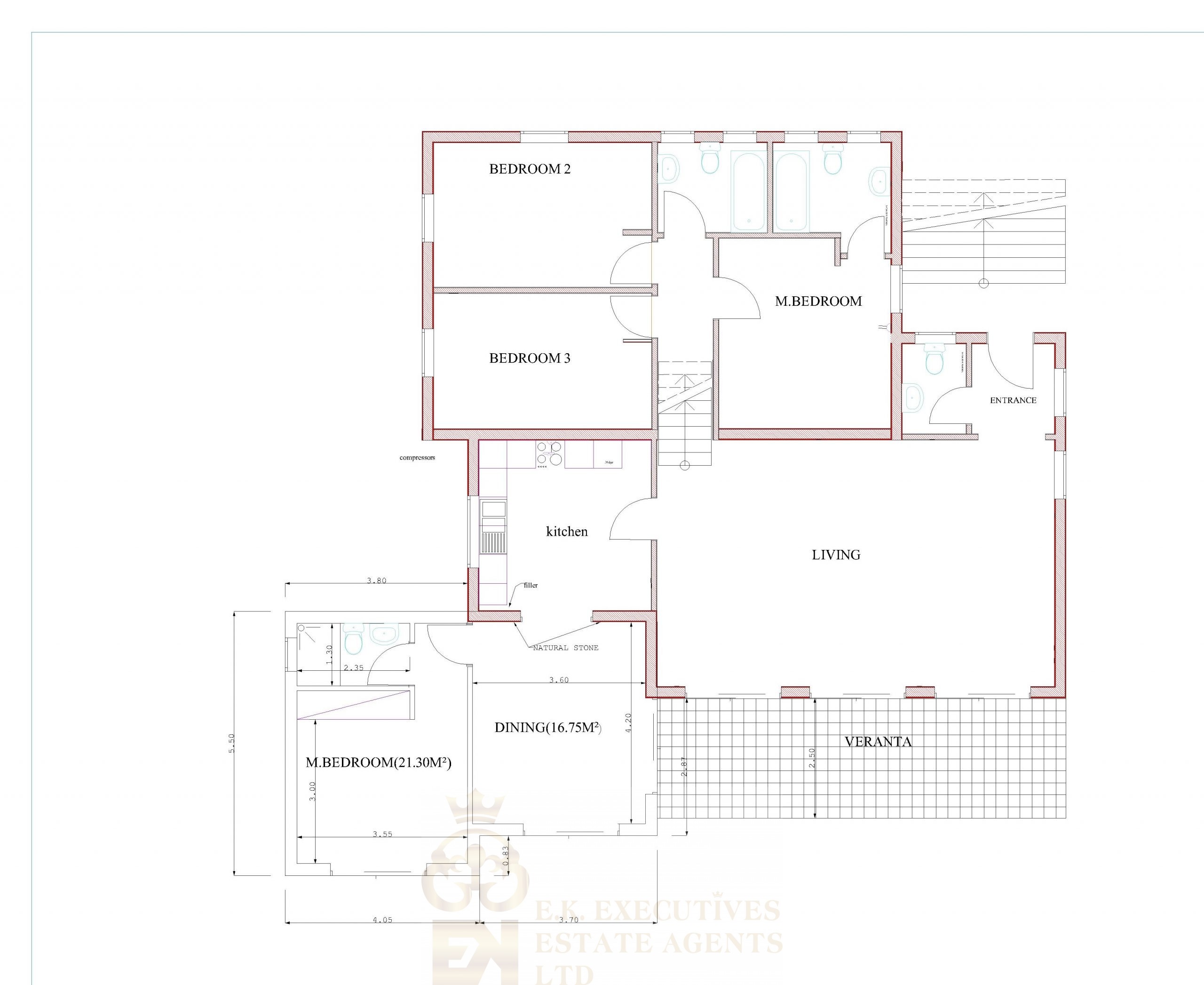
Covered area total 672m2 – Plot 179m2.
The model which is a large bungalow (split/level) (4 bedrooms and 4 bathrooms) whis two of them master bedrooms
.The distance to Limassol town only 15 minutes drive and 10 minutes away from the beach.
Souni area offer a wonderful countryside environment benefiting from the beauty of the pine trees and wild herbs with spectacular views of the Mediterranean sea.
Estimated delivery June 2021
Features:
Villa completed price is €400,000 + VAT. (€420,000 at 5% VAT in total).
Note: that at this stage can do several internal changes, including the internal partitions to make the house, suit the clients particular needs.
The details provided on this site are intended as a guide and do not form part of a contract. Buyers/Tenants should satisfy themselves as to any information contained therein. We can provide all documents for the properties to the potential Buyer/Tenant upon request before reaching to an agreement. Prices and availability are subject to change without prior notice. The advertised properties have/have not (N/A) energy performance certificate, as mentioned in each ad.